一、产品简介
LXLGY-80~150系列复式水表,也叫子母水表,它由大小二种口径的水表组成。自来水通过水表的计量范围从小口径水表最小流量到大口径水表的最大流量。所以它是目前测量范围较大,流量下限较低的一种水表。
二、产品特点
1.压力损失小
DN80~200复式水表压力损失小于等于0.04MPa,对供水企业而言,它的供水成本相对来说也是较低的。为供水企业节能降耗提供了有效地保障。
2.计量流程广
其计量范围从主表的旁路小口径水表的最小流量到大口径主水表的常用流量,量程比达到1250~3000。
3.始动流量小
DN80~150复式水表中的旁路小口径水表若采用原DN20普通B级表,其始动流量小于等于14 l/h,而采用 DN20节水型水表,其始动流量小于等于2 l/h;DN200复式水表中的旁路小口径水表若采用原DN25普通B级表,其始动流量小于等于17 l/h,而采用DN25节水型水表,其始动流量小于等于3 l/h;从而较好地解决了大口径水表在最小流量下的低流量和超低流量状态下无法记录用水量的计量难题。
4.结构新颖
此类水表的机芯和流量转换控制阀均采用插入可拆式,便于水表的维修与清洗。流量转换控制阀采用磁力硅橡胶垫铜阀门组合件,密封效果好,磁钢密封正面有一定厚度的铜隔离面和硅橡胶密封垫圈,由于密封面垫圈是硅橡胶的,且表面光滑,即使水中含有微量的铁质小颗粒,也很难吸附在密封面上,相反,由于水的流动在阀瓣的背面会产生涡流,微小铁质颗粒也只会吸附在阀瓣背面和底径向面。
5.互换性好
DN80~200复式水表长度设计是与原LXL-80~200水平旋翼式水表长度相对应,可满足在线使用的LXL-80~200水平旋翼式水表拆换安装。如在DN80~150复式水表的进水口或出水口配置相对应的连接管,亦可满足在线使用的LXS-80~150旋翼式水表拆换安装。
三、流量技术参数
| 型号 | 大表公称口径 DN | 小表公称口径 DN | 过载流量 Q? | 常用流量 Q? | 分界流量 Q? | 最小流量 Q? | 最小读数 Min | 最大读数 Max |
| mm | m3/h | m3 | ||||||
| LXLGY-80 | 80 | 20 | 78.75 | 63 | 0.2 | 0.05 | 0.0001 | 999999+99999 |
| LXLGY-100 | 100 | 20 | 125 | 100 | 0.2 | 0.05 | 0.0001 | 999999+99999 |
| LXLGY-150 | 150 | 40 | 312.5 | 250 | 0.8 | 0.20 | 0.0001 | 999999+99999 |
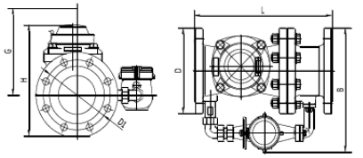
四、外形及规格尺寸

| 型号 | 公称口径 DN | 长 L | 高 H | 高 G | 宽 B | 连接法兰 | 重量 | ||
| mm | 法兰外径 D | 螺栓孔中心圆直径 D1 | 连接螺栓数量 | kg | |||||
| LXLGY-80 | 80 | 370 | 276 | 400 | 310 | 200 | 160 | 8×M16 | 27.5 |
| LXLGY-100 | 100 | 370 | 286 | 400 | 320 | 220 | 180 | 8×M16 | 33 |
| LXLGY-150 | 150 | 500 | 345 | 500 | 445 | 285 | 240 | 8×M16 | 64 |
五、结构组成
复式水表通常由公称口径为DN80及以上的主表、公称口径为DN25及以下的子表和转换阀等组成,主表和子表并联连接。母表采用水平螺翼式干式设计,计数器部分采用磁传或液封方式,便于计数清晰准确,这也是该类水表比较好的设计方面。子表采用通常使用的旋翼式水表设计。为了达到大小流量的自由转换,母表后跟随流量控制阀,通过压差自动控制流量控制阀的开启。子表由同口径管道将母表和转换阀后相互连通,便于小流量时水流通过。当流量较小时,转换阀关闭,水流由小口径水表计量。当流量增大至转换阀开启时,大小两表同时计量。
此类型水表的分流计量方式大大降低了大口径水表的起始流量。能比普通水表承受更高的瞬间冲击流量。它的设计属于模块化的设计,主表、旁路表、以及计数器部分均可依据客户的需要灵活组合,当某个部件损坏时可以方便拆换,可以方便的实现各种方式的数据远传等。

六、工作原理及应用
由流量转换控制阀根据流经水量的大小自动控制水流流过旁路小口径水表或同时流过主路大口径主水表,在用水量小时,流量转换控制阀处于关闭状态,由副表计量,主表不计量;即流量超过一定值(QX2)时,流量转换控制阀开启,主表副表同时计量;流量下降到一定值(QX1)时,流量转换控制阀又关闭,副表计量。这样,通过流量转换控制阀的自动控制原理,发挥了大小水表的计量功能。 水表的计量读数有两个独立的计数器记录给出,也就是说流经复式水表的水的总体积便是主表(母表)指示器读数与副表(子表)指示器读数相加而得出的体积之和。
复式水表主要应用于非连续性大流量供水场合,即在大小流量差异较大,用水峰谷变化频繁的计量场所。如住宅小区、机关、部队、学校、矿山、医院、厂区以及农村用水计量。解决了目前大口径水表普遍存在的最小流量以下的低流量和超低流量水资源流失率较高的问题。